HVALPSUND: For et par måneder siden kunne vi her i avisen fortælle om planerne om at opføre seniorboliger ved lystbådehavnen i Hvalpsund.
Det område der er tale om er arealet omkring Pakhuset og især den nuværende vinteropbevaringsplads for både, som Ejgild Bach ved et såkaldt mageskifte med Vesthimmerlands Kommune nu midlertidigt kommer til at stå som ejer af. Planen er nemlig at arealet skal sælges til Aars Boligforening, som er meget interesseret i at opføre seniorboliger på stedet.
Der er planer om at opføre 20 lejeboliger fordelt med 11 stk. på 90m2 og 9 stk. 70 m2. I tilknytning til 1-plans boligerne opføres et fælleshus med gæsteværelser og et mindre samlingslokale til fælles arrangementer. Den forventelige husleje inkl. fællesudgifter bliver på henholdsvis ca. kr.5.500 og ca. kr. 7.000 pr. måned. Hertil kommer forbrug. Husene vil være topisoleret og opvarmes med fjernvarme.
Aars Boligforening har haft Krogh Madsen Arkitekter til at tegne de foreløbige skitser op for projektet både med hensyn til placering og udenomsarealer, men også m.h.t. til boligernes indretning. Det har i den forbindelse været vigtigt at hver bolig har sit eget udeareal med terrasse, grønt og indkranset af hæk til at give ly for vinden. Desuden er der også egen p-plads ved hver bolig.

Sådan ser plantegningen ud for projektet som udgør 20 boliger i 2 størrelser samt et fælleshus.

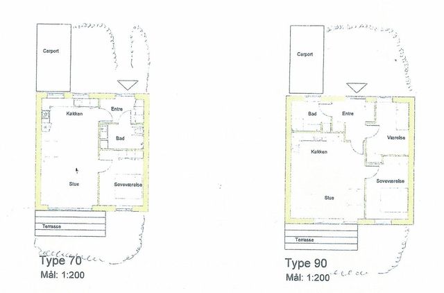
Sådan ser forslagene ud til indretningen af lejeboligerne på henholdsvis 70 og 90m2.
Midt i oktober fortalte Ejgild Bach og Preben Sonnichsen, der er tidligere konsulent og mangeårig ven af Ejgild Bach, om projektet overfor Hvalpsund Pensionistforenings medlemmer. Medlemmerne viste stor interesse for projektet, selvom der på det tidspunkt endnu ikke forelå nogle tegninger.
Men det gør der nu, og de blev således i torsdags præsenteret for pensionisterne. I den forbindelse blev disse meget potentielle lejere spurgt til deres interesse.
-Jeg kan, når vi på mandag mødes med Aars Boligforening, overdrage 15 forhånds tilkendegivelser fra interesserede lejere. Det er da et flot udgangspunkt, siger Preben Sonnichsen, der er meget overbevist om at projektet nu bliver til noget.
Når vi mødes på mandag med Aars Boligforening har jeg en god forventning om at aftalen falder på plads, siger Preben Sonnichsen.
